Villa singola in vendita

Avezzano, Via Ciro Menotti
€ 195.000
10 locali 10 locali
520 Mq 520 Mq
6 bagni 6 bagni

Villa singola in vendita

Avezzano, Via Ciro Menotti

Descrizione annuncio

San Pelino – Villa bifamiliare con progetto approvato

Contattaci per maggiori informazioni.

In zona residenziale e ben collegata ai principali servizi, proponiamo in vendita una villa bifamiliare allo stato grezzo, realizzata nel 2005, con progetto di completamento già approvato.

L’immobile si sviluppa su tre livelli e offre ambienti ampi e ben distribuiti:

Piano terra: ingresso, soggiorno, cucina abitabile, sala da pranzo e lavatoio

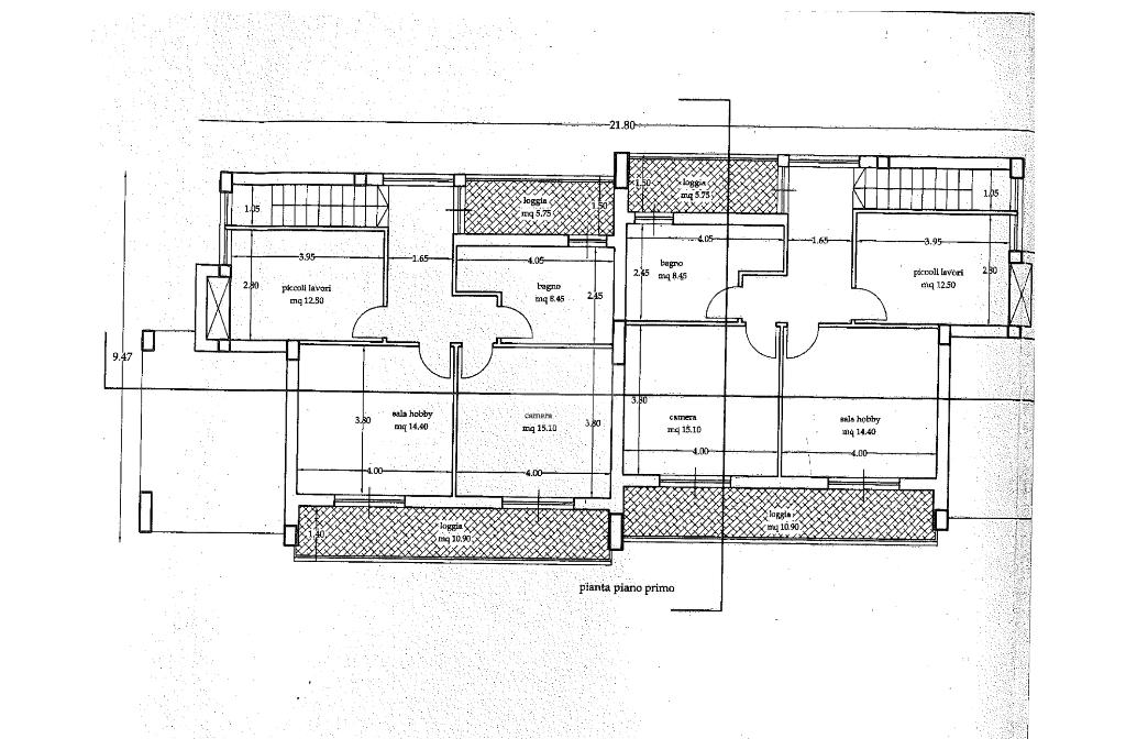
Primo piano: tre camere da letto e bagno

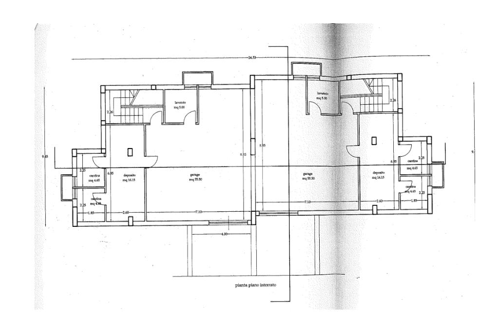
Piano seminterrato: garage, lavatoio, locale deposito e due cantine.

Completano la proprietà giardino privato, balconi e logge, che garantiscono luminosità e spazi esterni vivibili in ogni stagione.

La soluzione necessita di lavori di completamento, ma rappresenta un’opportunità interessante per chi desidera personalizzare gli ambienti secondo il proprio gusto, ottenendo una villa moderna e funzionale.

Grazie alla distribuzione interna, l’immobile si presta inoltre ad essere suddiviso in due unità abitative, ideale per due nuclei familiari.

Posizione strategica: residenziale e tranquilla, ma al tempo stesso non distante dai principali servizi.

Se per acquistare la tua nuova casa hai bisogno di vendere il tuo attuale immobile contattaci per una consulenza con valutazione gratuita e senza impegno.

Non perdere l'opportunità di acquistare la tua nuova casa, chiamaci per fissare un appuntamento!

Seguici sui nostri canali social:

Facebook: Tecnorete Avezzano

Instagram: tecnorete_avezzano

YouTube: Tecnorete Avezzano

Mostra tutto

Nelle vicinanze

Trasporto pubblico Trasporto pubblico
Paterno-San Pelino
Paterno-San Pelino
1,3 Km
Avezzano
Avezzano
3,0 Km
Trasporto pubblico
200 m
Fermata TUA
Fermata TUA
2,9 Km
Scuole Scuole
Scuole
2,0 Km
Istituto per Ragionieri Galileo Galiei
2,7 Km
Istituto di istruzione superiore "Ettore Majorana"
2,7 Km
Farmacia Farmacia
Farmacia Stornelli
1,0 Km
Ospedali Ospedali
Ospedali
2,6 Km
obitorio
2,6 Km
Ospedale Santi Nicola e Filippo Avezzano
2,7 Km
Supermercati Supermercati
Oasi
1,7 Km
Tigotà
2,0 Km
Lidl
2,1 Km
Tuodì
2,4 Km
Di Marco
2,6 Km
Negozi Negozi
Forno Bianchi
2,6 Km
Bar Bar
Bar
230 m
Il Ruvido
2,3 Km
Ristoranti Ristoranti
Le Ginestre
1,8 Km
IL Laghetto
1,9 Km
L'Officina del gusto
2,3 Km
Mostra tutto

Caratteristiche

Rif.:
61102561
Piano:
Su più livelli di 3
Totale piani:
3
Box:
2
Balconi:
4
Terrazzi:
4
Mostra tutto
Prezzo Prezzo
€ 195.000
Rata mutuo Rata mutuo
€ 919 / mese
Spese annue Spese annue
€ 0
Proponi il tuo prezzoProponi il tuo prezzo

Classe Energetica

G
G
G
G
G
G
G
G
G
EP globale non rinnovabile:
0.00 kW h/m² anno
EP globale rinnovabile:
0.00 kW h/m² anno
EP invernale del fabbricato:
EP estiva del fabbricato:
Anno di costruzione:
2005
Riscaldamento:
Autonomo
Tipo impianto:
A radiatori
Tipo alimentazione:
Metano

Ti interessa visionare l'immobile?

Fissa un appuntamento  Fissa un appuntamento

Richiedi informazioni

Clicca su Leggi per aprire l'informativa
* Questi campi sono obbligatori

Calcola il tuo mutuo

Semplice e senza impegno
Anticipo

( % )
Mutuo

( % )

pochi semplici passi

inserisci i tuoi dati
Questionario completato
Grazie per aver richiesto un appuntamento senza impegno con un nostro Consulente del Credito e Assicurativo.

Hai inserito correttamente tutti i dati necessari e a breve riceverai una e-mail con un link da convalidare per inviare i tuoi dati.
Affiliato
Avezzano Mediazioni Srl
Via Trieste, 35 67051 Avezzano (AQ)
Via Trieste, 35 67051 Avezzano (AQ)
Zona: Avezzano
Mostra su mappa
Affiliato
Avezzano Mediazioni Srl
Via Trieste, 35 67051 Avezzano (AQ)

2026 Tecnocasa Franchising S.p.A. - P. IVA 08365160152 - Via Monte Bianco 60/A 20089 Rozzano (MI). Ogni agenzia ha un proprio titolare ed è autonoma. Privacy policy | Policy utilizzo | Cookie policy